Borrar
Edificio del Palacio de Justicia de Salamanca que será renovado completamente en su interior. Salamancahoy

Grandes constructoras de España pujan por las obras del Palacio de Justicia en Salamanca

Cotodisa Obras y Servicios será finalmente la que llevará a cabo la rehabilitación del gran edificio de Gran Vía por casi un millón menos de los presupuestado

Juanjo González

Salamanca

Viernes, 31 de octubre 2025, 08:09

Comenta

El Ministerio de la Presidencia, Justicia y Relaciones con las Cortes, a través de la Subdirección General de Obras y Patrimonio ha adjudicado las obras de la rehabilitación del Palacio de Justicia de Salamanca, obras del edificio de la calle Gran Vía 33-37 de Salamanca, un proyecto que no paraba de acumular retrasos desde el año 2020 y que por fin sale adelante tras una adjudicación a la empresa Cotodisa Obras y Servicios S.A.

La obra, que salió a adjudicación el pasado mes de abril, cuenta con un plazo de ejecución de 34 meses: su presupuesto base de licitación era de 8.356.001,05 € (sin IVA) o lo que es lo mismo 10.110.761,27 € con el IVA y finalmente ha sido adjudicada por 9.327.107,06 euros con el IVA incluido (7.708.352,94 euros sin IVA). Es decir, casi 800.000 euros de rebaja.

La adjudicación, muy concurrida

Hasta un total de 14 grandes constructoras se presentaron al concurso de licitación, entre ellas algunas de las más importantes de España y a nivel internacional como Dragados, empresa del grupo ACS cuyo presidente es Florentino Pérez -máximo dirigente del Real Madrid-, empresa que entre otras obras en Salamanca realizó recientemente la obra del edificio del antiguo Banco de España en Salamanca, en la Plaza de los Bandos; Ferrovial Construcción - filial de construcción de la empresa española Ferrovial, que ha participado en grandes obras como el museo Guggenheim de Bilbao, la Terminal 4 del aeropuerto de Barajas en Madrid, el Crossrail de Londres y la construcción de líneas de AVE en España-, además de otras de nivel internacional como Rover Infraestructuras, Geoxa Construcciones, Proyecon Galicia, Ejuca SA, Ortiz Construcciones y Proyectos -conocido como Grupo Ortiz o la gallega Civis Global entre otras.

La adjudicataria finalmente, Cotodisa Obras y Servicios S.A., que se llevó el concurso en gran parte por la mejora en el precio final del concurso por un escaso margen con Rover Infraestructruas, ha participado en obras como la ampliación de la Línea 3 de Metro de Madrid, en la reforma de trece locales de restauración en los pabellones del Recinto Ferial de IFEMA Madrid o reformas de la sede de Ballet Nacional de España y de la Compañía Nacional de Danza, entre otras.

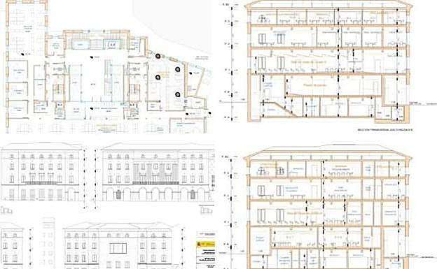
El proyecto incluye actuaciones sobre la totalidad de la superficie, que cuenta con más de 4.300 m2, excepto en la fachada, que se mantendrá, al encontrarse en una zona de protección ambiental. Como ya detalló en su día el Ministerio de Justicia, durante el transcurso de las obras, los órganos judiciales que actualmente prestan servicio en el Palacio de Justicia se trasladarán al edificio anexo.

La intervención se realizará bajo dos premisas principales: recuperar la esencia del edificio original y la cubrición superior del patio original. Para ello, entre otras obras, en la planta baja se quitará la entrada desde la Plaza de la Constitución y la escalera existente en su prolongación; se eliminará la escalera secundaria que sólo baja a sótano y el ascensor junto a los aseos públicos en todo el recorrido. Eso sí, se mantendrá la escalera imperial por su impronta en el edificio para uso público desde planta baja a planta segunda.

Detalles de las obras.

Lo que acogerá el Palacio de Justicia de Salamanca

El 'nuevo' Palacio de Justicia de Salamanca albergará la actual Audiencia Provincial (Sección Única), así como 4 nuevos juzgados (Contencioso - Administrativo y Social), además de la previsión de crecimiento de dichos órganos judiciales en el municipio de Salamanca.

■ Audiencia Provincial (Sección Única).

■ 2 Juzgados de lo Social.

■ 2 Juzgados de lo Social.

■ Fiscalía Provincial.

■ 3 Unidades Procesales de Apoyo Directo (UPAD), de reserva.

■ Unidades Administrativas.

■ Jurado, con zona de descanso y deliberaciones. Dependencias para testigos y detenidos.

■ Dependencias de profesionales y varios.

■ 4 Salas de vistas.

■ Biblioteca.

■ Zona de detenidos y policía.

■ Vestuarios.

■ Instalaciones.

■ Archivos para estas Unidades Judiciales.

Esta funcionalidad es exclusiva para registrados.

Reporta un error en esta noticia

* Campos obligatorios

salamancahoy Grandes constructoras de España pujan por las obras del Palacio de Justicia en Salamanca

Grandes constructoras de España pujan por las obras del Palacio de Justicia en Salamanca