Borrar
Las noticias imprescindibles de Salamanca este jueves 4 de diciembre

La obra para ampliar las Urgencias de Salamanca que se han quedado pequeñas en cuatro años de Hospital

Una reforma sumará unos 350 m2 al servicio más demandado por los salmantinos utilizando la zona de ambulacias y la entrada que se convertirán en nuevos espacios de atención y salas de espera

Félix Oliva

Salamanca

Sábado, 29 de noviembre 2025, 10:16

Comenta

El servicio más demandado de Salamanca, las Urgencias del Hospital, ampliarán el espacio disponible para hacer frente en mejores condiciones a los 400 usuarios diarios que, de media, atraviesan sus puertas para una atención de récord. Atenderlos a todos obligará a unas obras de 4 meses y 350.000 euros para ampliar zonas de espera con más asientos por el aumento de la afluencia.

Las nuevas Urgencias en el Hospital han heredado la alta presión asistencial que recibía la antigua puerta de urgencias del Clínico. El año pasado, más de 157.000 pacientes fueron atendidos sin cita en el CAUSA, fundamentalmente en el Hospital Universitario de Salamanca, con las situaciones de tensión que provoca.

Es precisamente la alta presión el motivo fundamental de la ampliación de la zona de Urgencias generales. Según se explica en el pliego del contrato, «consiste únicamente en un incremento de la superficie para ubicación de un mayor número de asientos, debido al aumento de la demanda en la actualidad en la unidad de Urgencias, la cual no presenta horarios concretos ni posibilidad de regulación en la afluencia de pacientes». Es decir, que la afluencia de pacientes a cualquier hora y día es la razón de que haga falta más espacio. Pero, ¿de dónde sacarlo? Del soportal exterior.

La reforma ocupará el actual acceso por el aparcamiento de las ambulancias, un soportal de columnas cubierto por la primera planta de ese lado del nuevo edificio, pero sin cerrar. La actuación va a consistir en cerrar todo ese espacio y dotarlo de las mismas características que las actuales Urgencias generales para ganar unos 350 m2 para el servicio.

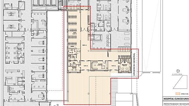
Urgencias ampliada

Imagen después - La obra para ampliar las Urgencias de Salamanca que se han quedado pequeñas en cuatro años de Hospital

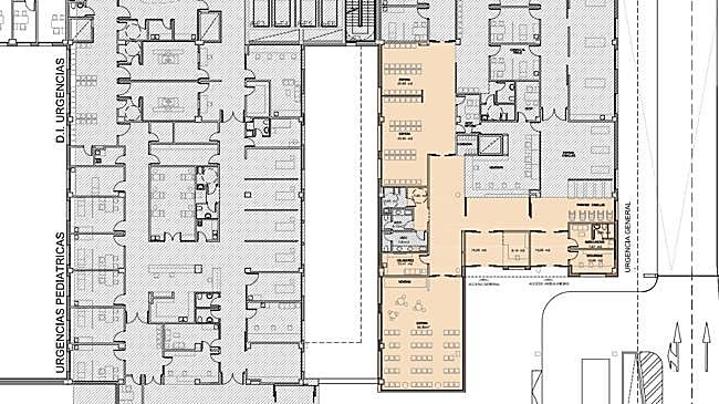
Urgencias actual

Imagen antes - La obra para ampliar las Urgencias de Salamanca que se han quedado pequeñas en cuatro años de Hospital

La actuación se desarrolla en una única altura, adelantando la entrada de urgencias en la zona de soportal, manteniendo el mismo ancho actual y cumpliendo con las distancias establecidas por incendios. En este espacio se distribuirán la actual y una nueva sala de espera que sale de esta ampliación. Son 92 m2 más que se suman a otros 68 e dos salas, por los 67 m2 que tiene actualmente.

160 m2

tendrán las tres nuevas salas de espera por los 67 de la actual

La sala de espera actual se abre al pasillo, dejando el espacio diáfano, retrasando la puerta del pasillo previa al acceso a la zona de consultas de triaje, conectando ambas salas de espera. Las nuevas salas de espera se separarán de la zona de recepción por puertas correderas automáticas.

El proyecto obligará a mover el aparcamiento de ambulancias y la zona de celadores y a instalar un paravientos para mayor confort de los usuarios. Se aprovecha el amplio porche de acceso desde el exterior para la ampliación. El actual acceso de pacientes de Urgencias permanecerá cerrado durante el transcurso de las obras, habilitándose temporalmente el acceso por el de ambulancias y camas.

Los nuevos espacios tendrán la misma terminación y aspecto que los actuales y servirán para ampliar el número de consultas y poder dividir en zonas por prioridad, mejorar la atención y reducir, en la medida de lo posible, las incomodidades y las esperas.

Esta funcionalidad es exclusiva para registrados.

Reporta un error en esta noticia

* Campos obligatorios

salamancahoy La obra para ampliar las Urgencias de Salamanca que se han quedado pequeñas en cuatro años de Hospital

La obra para ampliar las Urgencias de Salamanca que se han quedado pequeñas en cuatro años de Hospital